ID Annuncio : 6671
VENDITA €390.000,00 - APPARTAMENTO, BILOCALE, VENDESI
| Nr. Vani | 2 |
| Piano(i) / di piani | 2/6 |
| Altezza Passo Carraio | 5 |
| Citofono | SI |
| Superficie commerciale | 55 |
| Giardino Condominiale | SI |
| Spese Condominiali | 1500 ANNUI |
| Telefono | SI |
| Numero Bagni | 1 |
| Anno di Costruzione | 1940 |
| Balcone | 1 |
| Camere da letto | 1 |
| Ascensore | SI |
| Tipo Riscaldamento | CENTRALIZZATO RADIATORI |
| Portineria | SI 1/2 |
| Cantina | POSSIBILITA' CANTINA - PREDISPOSIZIONE ICLIMATIZZAZIONE - NUOVO MAI ABIATATO |
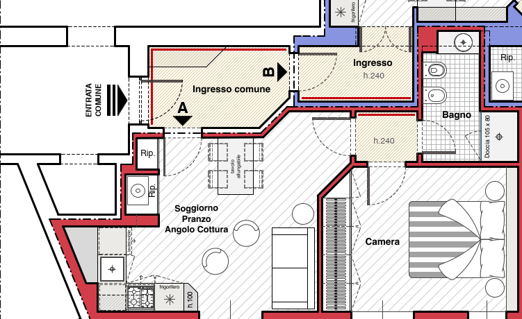
MM PIOLA A 5 MINUTI DALLA METRO’: ( Rif. Id : ) Nella tranquilla e richiestissima PIAZZA DONEGANI CUORE DI CITTA’ STUDI In stabile signorile degli anni ’40, piano SECONDO CON ASCENSORE . L’Agenzia Immobiliare SERVIZI IDEACASA propone in VENDITA OTTIMO 2 LOCALI più servizi: ingresso su ampia sala con zona cottura a vista camera bagno ripostiglio in quota 1 balcone possibilità cantina MONO ESPOSTO riscaldamento centralizzato FINEMENTE RISTRUTTURATO-PREDISPOSIZIONE CLIMATIZZAZIONE. La zona dove è ubicato l’immobile è ricca di negozi vari, supermercati CARREFOUR, TIGOTA’, LIDL, farmacie, banche, parchi giochi, centri sportivi, asili, scuole primarie, secondarie, Licei a due passi dal politecnico di Milano.
A 5 minuti a piedi dalla fermata della metro linea 2 MM PIOLA, a due passi dalla fermata dei mezzi di superficie AUTOBUS E TRAM E IMMEDIATE VICINANZE DELLA STAZIONE FS di Milano Lambrate, vicinanza imbocco tangenziali e autostrade DA VEDERE EURO 390.000,00
Questo appartamento rappresenta un’eccellente opportunità di acquisto per persone desiderose di mettere al sicuro i propri risparmi, acquistando un immobile che garantisca un ottimo investimento e vuole realizzare la propria dimora personalizzata.
La SERVIZIDEACASA è operativa telefonicamente dal lunedì al venerdì (non festivi), dalle 9:00 alle 13:00 e dalle 15:00 alle 19:30. SABATO SOLO SU APPUNTAMENTO. Si riceve in Agenzia solo ed esclusivamente previo appuntamento.
Per informazioni “TEL 0236569526 r.a.- CELL 3204514026 è attivo il servizio whatsapp lasciate un messaggio con nome cognome n telefonico e motivo del contatto dove desiderate essere ricontattati.
Dettagli Aggiuntivi
- STABILE: SIGNORILE ANNO 1940
- APPARTAMENTO: NUOVO


































































































